Immo Lorena
Achat - Construction - Location - Vente
RECHERCHE

Maison individuelle à vendre 5 chambres à Pétange

  • Référence : 86651782
  • Type : Maison individuelle
  • Chambres : 5
  • Salles de bains : 3
  • Surface habitable : +/-0 m2
  • Superficie terrain : +/- 0,03 ares
  • Prix de vente : 920 000 €
  • Honoraires d'agence :
  • Année de construction : 2026
  • Disponibilité : Immédiate
Contact
Classe énergétique
A
Classe d'isolation thermique A

Description

L'agence IMMO LORENA de Pétange, partenaire de la CHAMBRE IMMOBILIERE DE Luxembourg a choisi pour vous UNE TOUTE NOUVELLE MAISON (CLÉS EN MAIN) sur un terrain de 2 ares 69 centiares, idéalement située à Pétange dans une belle rue large et calme, d'une superficie de 171,56 m2 habitables, à proximité du centre, des écoles fondamentales, crèches, bus, commerces; accès facile vers les grands accès routiers.

La composition du bien sera la suivante:

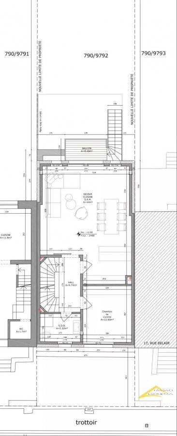
AU REZ-DE-CHAUSSÉE

Un hall d'entrée de 9,20 m2
Un garage de 19,84 m2
Un hall de 2,34 m2
Une salle de jeux//chambre de 23 m2 avec une salle de bain privative de 4,40 m2
Une cave de 3,31 m2

AU PREMIER ETAGE (PIECES A VIVRE)

Un hall de 5,74 m2
Un double living de 44 m2 avec possibilité d’installer une cuisine
Une chambre ou la cuisine séparée**** de 12,93 m2
Salle de douche de 5,32 m2

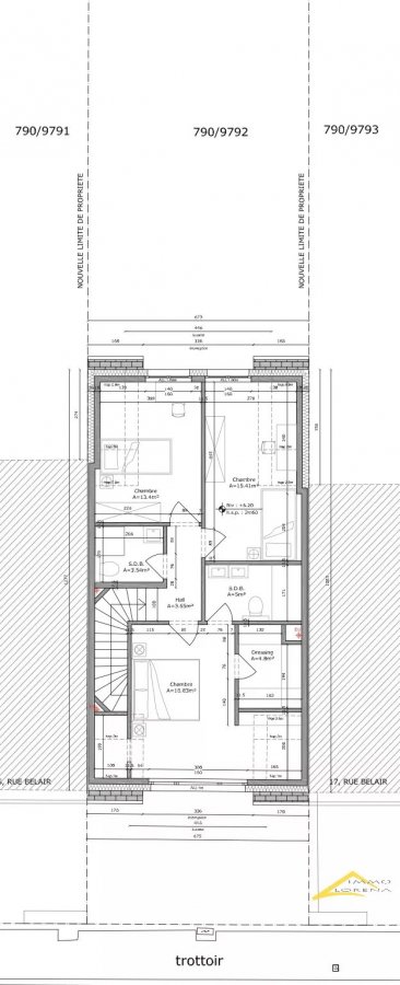
AU DEUXIÈME NIVEAU :

Un hall de 3,65 m2
Une chambre parentale faisant 18,83 m2 avec son dressing de 4,8 m2 et sa salle de bain de 5 m2
Deuxième chambre de 13,40 m2
Troisième chambre de 15,41 m2
Une deuxième salle de bain faisant 3,54 m2

Le prix de la TVA à 17% comprise

*** La cuisine et l'aménagement du jardin ne sont pas inclus dans le prix.

Cette maison de performance énergétique AA construite selon les règles de l'art associe une qualité de haut standing à une construction traditionnelle luxembourgeoise, châssis en PVC triple vitrage, ventilation double flux, radiateurs, video - parlophone, etc...

2% du prix de vente à la charge de la partie venderesse + 17% TVA
Pas de frais d'agence pour le futur acquéreur


VISITE 3D:

https://vrtour3ds.s3.amazonaws.com/2024/15a_rue_belair_petange/index.html

Pour tout contact:
Joanna Rickal: +352 621 365 640
Vitor Pires: + 352 691 761 110

L'agence Immo Lorena est à votre disposition pour toutes vos recherches ainsi que pour vos transactions LOCATIONS ET VENTES au Luxembourg, en France et en Belgique.

Caractéristiques

Intérieur

SalonOui

Sanitaires

Salles de bains3

Extérieur

Terrain0.03 ares

Voiture

Garage1
Place de parkingOui

Autres

CaveOui
InternetOui

Chauffage / climatisation

ChauffageOui
Chauffage électriqueOui

Contactez-nous

+352 50 93 32

Vous
 
Champs obligatoire
 
 
 
En envoyant ce formulaire, j’accepte que mes informations soient enregistrées puis utilisées par notre agence afin de répondre à ma demande. Consultez notre pour connaître vos droits.
 

Localisation

Pétange